【Upper Bukit Timah】 Verdale (D21)

Featured

  • Verdale_Night_Hero
  • VERDALE_Arrival_Portal
  • 4a._Verdale_Reflective_water_feature_at_the_courtyard
  • 4b._Verdale_Where_Home_meets_Nature
  • Verdale_Aerial_dusk
  • Verdale_Sky_Gardens
  • Verdale_Waterfall_Courtyard_and_Gastronomy_Room
  • Verdale_Wellness_Area
  • Verdale_Night_Hero
  • VERDALE_Arrival_Portal
  • 4a._Verdale_Reflective_water_feature_at_the_courtyard
  • 4b._Verdale_Where_Home_meets_Nature
  • Verdale_Aerial_dusk
  • Verdale_Sky_Gardens
  • Verdale_Waterfall_Courtyard_and_Gastronomy_Room
  • Verdale_Wellness_Area

  Project Details

2 De Souza Avenue, D21 - Upper Bukit Timah / Beauty World / Toh Tuck / Jalan Jurong Kechil / Lorong Kismis / Ulu Pandan / Clementi Park, 599458, CENTRAL NORTH-WEST, Rest of Central Region


MAIN PAGE AT A GLANCE:

 

 

VERDALE 蔚庭.轩

(D05 美世界

【Central West Condo】

 

Pricing From: 

 SOLD OUT 

1 + Study 1 Bath
570 Sqft $1,799 psf

Freehold  258 Units TOP Sept 2024  Height 5 Storey 1 Bed 1 Bed + Study 2 Bed 2 Bed Deluxe 3 Bed 3 Bed Deluxe  4 Bed 4 Bed + Family PH 5 Bed + Family PH

 

 

 

Walking Distance or take Two Bus Stops to Beauty World MRT ! AFFORDABLY Priced with Convenience for you everyday ! 

Posh Location, Surrounded by Landed Enclave and Unblock Greeneries which is now very Rare ! 

Within 1km, ONLY 8 Mins Walk to Pei Hwa Presbyterian Primary School [Top 12] !

Enjoy the Upcoming Transformation of Beauty World! Regional Centre with all Amenities and Necessities covered ! 

Close Proximity to the Mega Transformation of the West ! Jurong East Will be the Next CBD !

Verdale
VerdaleBeauty World - Central West Condo

 

 

 

PROJECT DETAILS

Price List
 

PRESS LAYOUT TYPES TO SEE FLOORPLAN

 

   LAYOUT(S)

Size
(Sqft)

PSF
($)

Price
From

 

 1 Bed

1 Bedroom 463 Sqft

463+  SOLD SOLD OUT
1 Bed + Study

1 Bed + Study 560 Sqft

570  SOLD SOLD OUT
2 Bed

2 Bedroom 614 Sqft

614+ SOLD SOLD OUT
2 Bed Deluxe

2 Bed Deluxe 710 Sqft

743 SOLD SOLD OUT
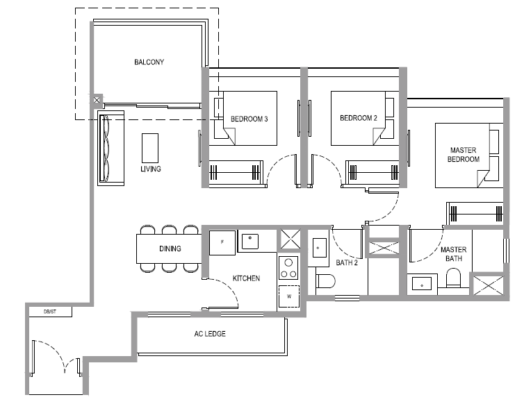
3 Bed

3 Bedroom 947 Sqft

947+ SOLD SOLD OUT
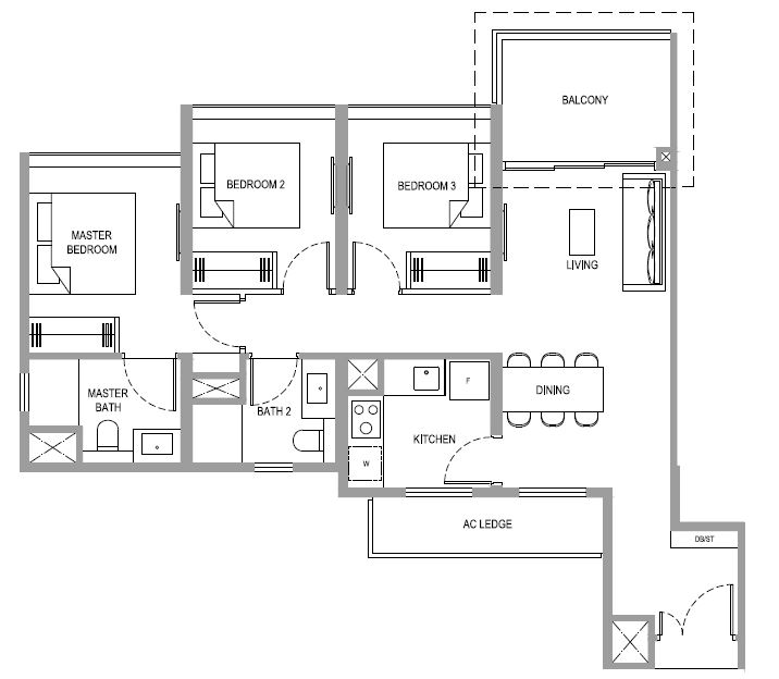
3 Bed Deluxe

3 Bedroom Deluxe 1001 Sqft

1001 SOLD SOLD OUT
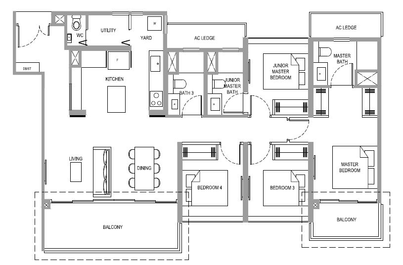
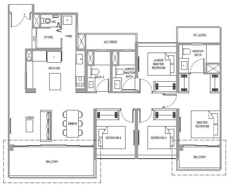
4 Bed

4 Bedroom 1410 Sqft

1410 SOLD SOLD OUT
4 Bed + Family (PH)

4 Bedroom + Family (PH) 1518 Sqft

 

1528 SOLD SOLD OUT
5 Bed + Family (PH)

5 Bed + Family (PH) 1873 Sqft

1873+ SOLD SOLD OUT
Units Sold
100%

 

(PH) = Penthouse

 

*All Pricing Are Subjected to Developer Changes & Availability. Contact Us Now.

 

 

 

Project Specification

 

 
Project Name Verdale


Developer:

 

C&C (JJK) PTE. LTD. (CSC Land Group &
China Overseas Holdinng)

 


Tenure:

99 Yrs

TOP:

Sept 2024

Location:

2 De Souza Avenue, Singapore 599458 

Number of Units:

258 Units

Building Height:

5 Storey

 

No of Facilities:

 

49

 

Project Layouts

 

Layout Types

Sqft

Units
1 Bedroom 463 - 474 18
1 Bed + Study 560 - 570 5
2 Bedroom 614 33
2 Bedroom (D) 700 - 753 114
3 Bedroom 947 15
3 Bedroom (D)  1001 - 1033 39
 4 Bedroom 1410
22
 4 Bed + Family (PH) 1518 - 1528 9
5 Bed + Family (PH) 1873

3

   

(D) = Deluxe


(PH) = Penthouse

 

 

  

 

 

LOCATION DETAILS

Location Map
District Map
 

  

VERDALE at District 21

Singapore District Map

 

district_names

 

  

 

 

Why Buyers buy here?

OPEN TAB FOR DETAILS

 

1. Less than 9 Mins Walk or 2 Bus Stops to Beauty World MRT!

 

 

9 Mins Walk to Beauty World MRT

 

Less than 2 Mins Walk to the Nearest Bus Stop

 

2. Well-Connected to Expressways

 

2 Mins Drive to PIE Expressway

 

2 Mins Drive to PIE where it connects to many other Expressways to get around the island conveniently!

  

3. Within 2km radius, Prestigious Pei Hwa Presbyterian Primary School is only 3 Bus Stops Away!

 

Within 1km, Bukit Timah Primary School is only 1 Bus Stop Away!

 

Ranked Top 12 out of 186 Primary Schools  

 

Within 2km, Pei Hwa Presbyterian Primary School is only 3 Bus Stops Away!

 

Other Education Institution within 2km - Keming Primary School, Lianhua Primary School and Bukit View Primary School!

 

German European School Singapore (Junior School Campus) is only 3 Mins Walk Away! 

 

Singapore Institute of Management is only 6 Bus Stops away!  

 

5 Bus stops to Ngee Ann Polytechnic!

  

4. Useful Amenities nearby

 

 

Bukit Timah Community Club is 2 Bus Stops away!

 

 

Bukit Timah Market is 3 Bus Stops away!
 

 

 

5. Mega Malls, Shops and Furniture Shops

 

6 Mins Walk to COURTS @ Bukit Timah

 

 

4 Bus Stops to Bukit Timah Shopping Centre

 

4 Bus Stops to Beauty World Plaza

 

4 Bus Stops to Beauty World Centre

 

7 Mins Walk to HDB Estate Coffee Shops, Convenience Stores, Wet Market at Block 18 and 19!

 

6. Regional Centre of the West, Masterplan with exciting Growth

 

Upcoming Integrated Mall at Beauty World MRT

 

Summary of Masterplan2019

 

Summary of Masterplan2019 

 

Upcoming High Speed Rail to Kuala Lumpur (Postponed but not announced as cancelled)

 

Upcoming High Speed Rail to Kuala Lumpur (Postponed but not announced as cancelled)

 

Upcoming Jurong Lake District Transformation

 

Upcoming Jurong Lake District Transformation

 

Upcoming Jurong Lake District Transformation

 

Upcoming Jurong Lake District Transformation

 

Upcoming Jurong Innovation District

 

Jurong Lake District will be home to the second CBD in Singapore, ultimately creating many professional job opportunities

 

 

Close Proximity to the Transformation of Jurong Lake District where it will appreciate your home value due to the rise in the demand after all the infrastructures is completed

 

7. RARE Project With Unblock Views, Low Density and Exclusive Project near Beauty World MRT!

 

Rare Unblock Views and Low Density Project at AFFORDABLE Prices!

 

Exclusive Project with Astounding Condo Facilities 

 

Quality Finishing in Living Room at Verdale is Exquisite and Posh!

 

Quality Finishing in Kitchen at Verdale is Exquisite and Posh!

 

 

8. Reputable Developer - CSC Land Group & China Overseas Holding (C&C (JJK) Pte. Ltd)

 

CSC Land Group's Biography

 

CSC Land Group's Corporate Profile

 

CSC Land Group's Track Record

 

China Overseas Holding's Track Record

   

 

 

 

AMENITIES

MRT | School | Supermarket | Mall

   

MRT
 

1KM
MRT  1KM

  

 

BEAUTY WORLD MRT (900M AWAY)

 

 

 

East West Line (EWL)

 

North South Line (NSL)

 

North East Line (NEL) 

 

Circle Line (CCL)

 

Downtown Line (DTL)

 

Thomson-East Coast Line (TEL)

 

Jurong Region Line (JRL)

 

Cross Island Line (CRL)

  

School 1KM
1KM
School  1KM
  1. 1. BUKIT TIMAH PRIMARY SCHOOL 
    (900M AWAY)
School 2KM
2KM
School  2KM
  1. 1. PEI HWA PRESBYTERIAN PRIMARY SCHOOL [TOP 12]
    (870M AWAY)
  2. 2. KEMING PRIMARY SCHOOL [TOP 59]
  3. 3. BUKIT VIEW PRIMARY SCHOOL
  4. 4. LIANHUA PRIMARY SCHOOL
Supermarket / Mall
1KM
Supermarket & Mall  1KM
  • GIANT SUPERMARKET (850M AWAY)
  • Upcoming Integrated Mall at Beauty World MRT (900M AWAY)

 

 

 

SITE PLAN

 

49 FULL CONDO AMENITIES
 
49 FULL CONDO AMENITIES

 

 

  

FLOOR PLAN

( 25% DOWNPAYMENT | 75% BANK LOAN  |  MONTHLY INSTALLMENT )

  

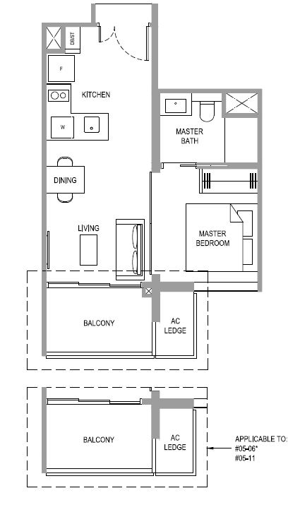
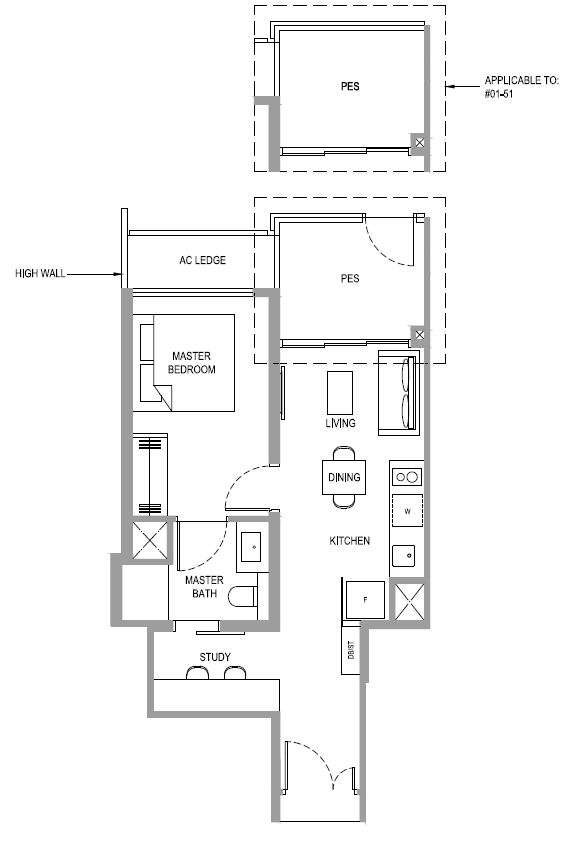
1 Bedroom
  

1 Bedroom
Size: 463 Sqft / 43 Sqm 
Type: A1
Price: $ SOLD SOLD
4188000     0.25
4188000     0.75
25% *D.P: $ -  
75% Loan: $ - -
Tenure:   30  
Interest:    1%  
Monthly:  $ -  
3141000 0.01    
31410 30    
942300 3141000    
4083300 0.00360    
14699.88 0.6873    
*WARNING: Fill In pricing @ CELL 3 AND CELL 4 will do

you have to Re-Tabulize 3 times for Calculation to be fully correct !! 
*D.P = Minimum 5% Cash & CPF

*All Pricing Are Subjected to Developer Changes & Availability. Contact Us Now.  

A1
463 Sqft

A2
463 Sqft

 

1 + Study
  

1 + Study
Size: 560 Sqft / 52 Sqm 
Type: A3sP
Price: $ SOLD SOLD
1025600     0.25
1025600     0.75
25% *D.P: $ -  
75% Loan: $ - -
Tenure:   30  
Interest:    1%  
Monthly:  $ -  
769200 0.01    
7692 30    
230760 769200    
999960 0.00360    
3599.856 0.6873    
*WARNING: Fill In pricing @ CELL 3 AND CELL 4 will do

you have to Re-Tabulize 3 times for Calculation to be fully correct !!
*D.P = Minimum 5% Cash & CPF

*All Pricing Are Subjected to Developer Changes & Availability. Contact Us Now.

 

A3sP
560 Sqft

[/super_tab]
A4sP
570 Sqft

 

 

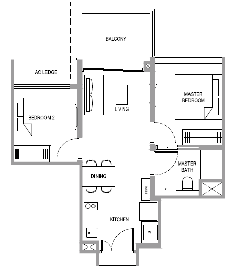
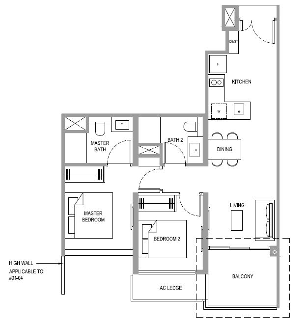
2 Bedroom
2 Bedroom
Size: 614 Sqft / 57 Sqm 
Type: B1c
Price: $ SOLD SOLD
4188000     0.25
4188000     0.75
25% *D.P: $ -  
75% Loan: $ - -
Tenure:   30  
Interest:    1%  
Monthly:  $ -  
3141000 0.01    
31410 30    
942300 3141000    
4083300 0.00360    
14699.88 0.6873    
*WARNING: Fill In pricing @ CELL 3 AND CELL 4 will do

you have to Re-Tabulize 3 times for Calculation to be fully correct !! 
*D.P = Minimum 5% Cash & CPF

*All Pricing Are Subjected to Developer Changes & Availability. Contact Us Now.

B1c
614 Sqft

B2c
614 Sqft

2 Bedroom (Deluxe)
2 Bedroom (Deluxe)
Size: 743 Sqft / 69 Sqm 
Type: B10
Price: $ SOLD SOLD
1318400     0.25
1318400     0.75
25% *D.P: $ -  
75% Loan: $ - -
Tenure:   30  
Interest:    1%  
Monthly:  $ -  
988800 0.01    
9888 30    
296640 988800    
1285440 0.00360    
4627.584 0.6873    
*WARNING: Fill In pricing @ CELL 3 AND CELL 4 will do

you have to Re-Tabulize 3 times for Calculation to be fully correct !!
*D.P = Minimum 5% Cash & CPF

*All Pricing Are Subjected to Developer Changes & Availability. Contact Us Now.

B10
743 Sqft

[/super_tab]
B4
710 Sqft

[/super_tab]
B5
732 Sqft

[/super_tab]
B6
753 Sqft

[/super_tab]
B7
732 Sqft

[/super_tab]
B8
743 Sqft

[/super_tab]
B9
732 Sqft

[/super_tab]
B11
700 Sqft

[/super_tab]
B12
743 Sqft

 

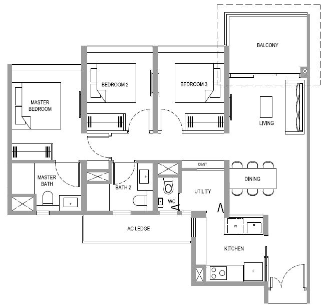
3 Bedroom
 

3 Bedroom
Size: 947 Sqft / 88 Sqm 
Type: C2c
Price: $ SOLD SOLD
1710200     0.25
1710200     0.75
25% *D.P: $ -  
75% Loan: $ - -
Tenure:   30  
Interest:    1%  
Monthly:  $ -  
1282650 0.01    
12826.5 30    
384795 1282650    
1667445 0.00360    
6002.802 0.6873    
*WARNING: Fill In pricing @ CELL 3 AND CELL 4 will do

you have to Re-Tabulize 3 times for Calculation to be fully correct !!
*D.P = Minimum 5% Cash & CPF

*All Pricing Are Subjected to Developer Changes & Availability. Contact Us Now.

C2c
947 Sqft

C1c
947 Sqft

 

 

3 Bedroom Deluxe
  

3 Bedroom (Deluxe)
Size: 1001 Sqft / 93 Sqm 
Type: C3
Price: $ SOLD SOLD
4188000     0.25
4188000     0.75
25% *D.P: $ -  
75% Loan: $ - -
Tenure:   30  
Interest:    1%  
Monthly:  $ -  
3141000 0.01    
31410 30    
942300 3141000    
4083300 0.00360    
14699.88 0.6873    
*WARNING: Fill In pricing @ CELL 3 AND CELL 4 will do

you have to Re-Tabulize 3 times for Calculation to be fully correct !! 
*D.P = Minimum 5% Cash & CPF

*All Pricing Are Subjected to Developer Changes & Availability. Contact Us Now.

C3
1001 Sqft

 

 

 

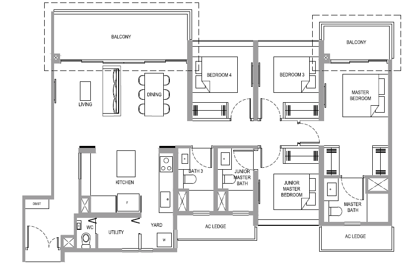
4 Bedroom
  

4 Bedroom
Size: 1410 Sqft / 131 Sqm 
Type: D2
Price: $ SOLD SOLD
2621200     0.25
2621200     0.75
25% *D.P: $ -  
75% Loan: $ - -
Tenure:   30  
Interest:    1%  
Monthly:  $ -  
1965900 0.01    
19659 30    
589770 1965900    
2555670 0.00360    
9200.412 0.6873    
*WARNING: Fill In pricing @ CELL 3 AND CELL 4 will do

you have to Re-Tabulize 3 times for Calculation to be fully correct !!
*D.P = Minimum 5% Cash & CPF

*All Pricing Are Subjected to Developer Changes & Availability. Contact Us Now. 

D2
1410 Sqft

D1
1410 Sqft

D3
1410 Sqft

 

4 + Family (PH)
  

4 + Family (Penthouse)
Size: 1528 Sqft / 142 Sqm 
Type: PHD-2
Price: $ SOLD SOLD
2786000     0.25
2786000     0.75
25% *D.P: $ -  
75% Loan: $ - -
Tenure:   30  
Interest:    1%  
Monthly:  $ -  
2089500 0.01    
20895 30    
626850 2089500    
2716350 0.00360    
9778.86 0.6873    
*WARNING: Fill In pricing @ CELL 3 AND CELL 4 will do

you have to Re-Tabulize 3 times for Calculation to be fully correct !!
*D.P = Minimum 5% Cash & CPF

*All Pricing Are Subjected to Developer Changes & Availability. Contact Us Now. 

PHD-2
1528 Sqft

[/super_tab]
PHD-1
1518 Sqft

 

5 + Family (PH)
  

5 + Family (Penthouse)
Size: 1873 Sqft / 174 Sqm 
Type: PHE-1
Price: $ SOLD SOLD
3398100     0.25
3398100     0.75
25% *D.P: $ -  
75% Loan: $ - -
Tenure:   30  
Interest:    1%  
Monthly:  $ -  
2548575 0.01    
25485.75 30    
764572.5 2548575    
3313147.5 0.00360    
11927.331 0.6873    
*WARNING: Fill In pricing @ CELL 3 AND CELL 4 will do

you have to Re-Tabulize 3 times for Calculation to be fully correct !! 
*D.P = Minimum 5% Cash & CPF

*All Pricing Are Subjected to Developer Changes & Availability. Contact Us Now. 

PHE-1
1873 Sqft

PHE-2
1873 Sqft

 

 

 

 

 

DIRECT DEVELOPER PRICE

100% Best Price Guarantee !

Early Bird Price !
Exclusive VVIP Preview !

FAST RESPONSE TIME

Immediate Viewing of All Multiples Showflat for Comparison

Free Cash-Flow & Timeline Planning
Lifetime After-sales Services Provided

BEST BUYERS' EXPERIENCE

Have A Ease of Mind Seamless Transition to Your Next New Home


Proven in-House Asset Capital Growth Strategists for Your Current to Future Property's Stages Direction

 

Call Us At +65-61007118

Viewing & Sales Enquiries
For Latest Pricing, Brochure & Viewing Arrangement.
Click for Viewing

 

Base Information

Bed
1
Bath
1
Living Areas (Type '+S' if to display plus study text)
+S sqft

Parking Information

Parking
570 Sqft
Property headline
VALUE FOR MONEY UPP. BUKIT TIMAH

 NEARBY HOT-SELLING PROJECTS

Projects in the same area
1 + S 1 474 Sqft
The Hottest-Selling Featured Projects
1 1 463 Sqft
2 2 743 Sqft
1 1 527 Sqft
【Newton】 Kopar At Newton (D09)
From:
$ 1,359,000
$2,544 PSF
1 1 517 Sqft
【Balestier】 Verticus (D12)
From:
$ 1,080,000
$2,333 PSF
1 1 463 Sqft
【Mattar】 The Antares (D14)
From:
Sold Out
Sold Out
1 1 452 Sqft
【Eunos / Kembangan】 Tedge (D15)
From:
Layout(s)
Available
2 2 775 Sqft
【Outram Park】 The Landmark (D02)
From:
$ 1,280,600
$2,578 PSF
1 1 495 Sqft

 Additional Options